התאמת שלדה CJ6 ממודל חדש לישן
בס"ד
ערב טוב!
שואל בשביל חבר
יש לו CJ6 76 עם רקבונות ו/או סדקים בשלדה
הוא מצא שלדה נקיה ותקינה, נאמר לו שהיא של CJ6 שנת 90
עכשיו השאלות:
1. יכול להיות CJ6 שנת 90?
2. בהנחה שכן האם השלדה תואמת (אורך , חורים וכו') או שאין מנוס מלבדוק עם מטר?
עברתי על הרבה שרשורים בנושא שנות הייצור של CJ לדגמיו וההבדלים ביניהם .
יצאתי יותר מבולבל משנכנסתי, אשמח אם מישהו יוכל לעשות סדר בדברים.
תודה רבה!
תגובה: התאמת שלדה CJ6 ממודל חדש לישן
לדעתי מתאים, הבעיה היחידה זה המספרים...
כן ויש גם CJ שנת תשעים
תגובה: התאמת שלדה CJ6 ממודל חדש לישן
כנראה מדובר ב cj8 מקוצר או קצר במקור. השילדות לא זהות אך ניתן להתאים.
תגובה: התאמת שלדה CJ6 ממודל חדש לישן
מה זה "רקבונות ו/או סדקים"?
השילדה נשברה?
התחלה של סדקים?
מה מצב השילדה באופן כללי?
מה מצב הג'יפ באופן כללי? האם מצדיק השקעה? או שאולי מדובר בנבלה ואין טעם?...
כי אם השילדה במצב טוב באופן כללי ומדובר רק בסדק קטן/במקום אחד ולא בשברים וריקבונות סופניים, זה לא סוף העולם. ניתן לתקן.
אחרי תיקון מקצועי הג'יפ יוכל להמשיך לעבוד כרגיל.
כדאי להשוות עלויות תיקון מול הבלגן וכאב הראש שכרוך בהחלפת שילדה - וזה הרבה בלגן וכאב ראש רציני. זה משהו שאתה יודע איך אתה מתחיל - אבל לא איך ומתי תסיים....
תגובה: התאמת שלדה CJ6 ממודל חדש לישן
בס"ד
אחה"צ טובים!
תודה לכל העונים!
דרור שכחתי לציין שהשלדה שלו היא שלדה פתוחה (C) והשלדה המוצעת היא סגורה.
בנוגע לגודל הסדק/רקבונות אני אנסה לחבר אותו לאתר, כך שלא יווצר טלפון שבור והוא יוכל להעלות גם תמונות.
המשך יום טוב!
ושוב תודה רבה!
תגובה: התאמת שלדה CJ6 ממודל חדש לישן
לא ניתן להחליף שלדה והמבין יבין. לטעמי, נושא לא חוקי ולא מתאים לפורום. אנשים עוד יקבלו רעיונות...
Sent from my LG-D802 using Tapatalk
תגובה: התאמת שלדה CJ6 ממודל חדש לישן
יהודה,
ההבדל בין להחליף בודי או להחליף שלדה הוא סמנטי, ולא צריך להפריע לדיון טכני על ההבדלים בין שנתונים שונים של שלדות ג'יפ.
תגובה: התאמת שלדה CJ6 ממודל חדש לישן
טכנית ניתן להחליף הכל. שילדה, מרכב, בג'יפים זה אפילו לא מסובך מדי.
כלומר - זה בכל זאת כאב ראש. צריך מקום לעבוד, כלים כבדים כמו ליפט או מסגרת מסיבית עם פלשנצוק וכו'.
במקרה של CJ ישן עם שילדה פתוחה - שום דבר שם לא זהה לשילדה מהמודלים המאוחרים יותר.
אבל אפשרי בהחלט.
2 קבצים מצורפים
תגובה: התאמת שלדה CJ6 ממודל חדש לישן
שנת 90 זה CJ8, וכמו שנאמר - לא מתאים. ניתן בעבודת מסגרות משמעותית לבצע התאמות. סביר להניח, כמו שכתב דרור, שיהיה משתלם יותר לתקן את השלדה הקיימת, אם איננה רקובה לגמרי. החבר מוזמן להעלות תמונות של האזורים הבעייתיים לדעתו ולקבל כאן חוות דעת מחברי הפורום הרבים ששיפצו/משפצים ג'יפים.
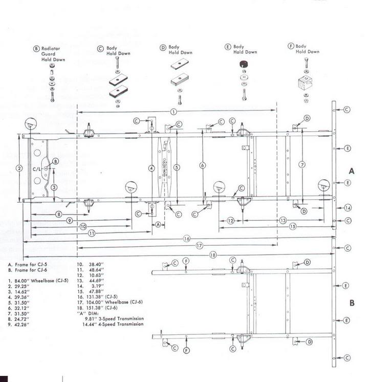
מידות שלדה CJ5/6
קובץ מצורף 108995
מידות שלדה CJ 7/8
קובץ מצורף 108996