ובכל זאת?
מה מידות ההתחלה לפני הקומבינות?
Printable View
את זה תמצא בשרטוטים שהיצרן הגיש למשרד התחבורה ,
אולי אפשר למצוא בהוראת רישום של הדגם
Sent from my SM-G973F using Tapatalk
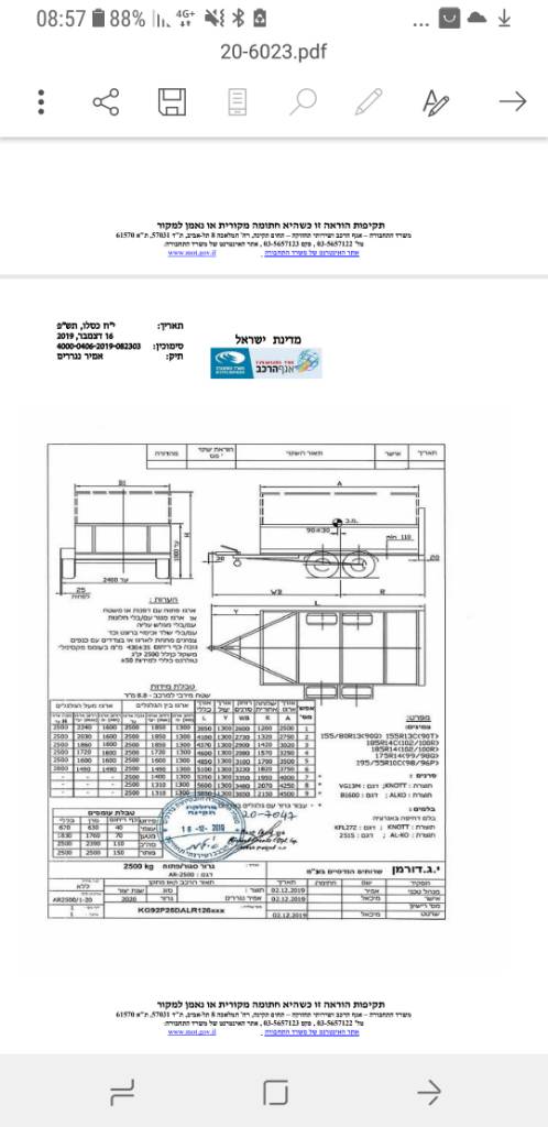
חיפוש ספוראדי בגוגלקובץ מצורף 144075קובץ מצורף 144076
Sent from my SM-A530F using Tapatalk
https://www.gov.il/he/departments/policies/7047_20
מעניין, אתה חושב שאפשר למצוא הוראת רישום לנגרר בן יותר מ-30 שנים??
איך יודעים מה הוראת הרישום אם היא לא מופיעה ברישיון?
Sent from my SM-J710F using Tapatalk
יצרן הנגרר שלי כבר לא קיים..
Sent from my SM-J710F using Tapatalk
טיפ ממכר שעיסוקו נגררים, נגררים, מסתבר שיש תקן אורך מוגדר לנגררים לפי משקל הכולל של הנגרר.
אורך הייצול מותאם בגדול לרדיוס פנייה בכביש ציבורי.
גם היצרן כפוף להוראה.
בפועל יש נגררים במשקל כולל זהה במגוון אורכים, איך זה מסתדר עם תקן כזה?
Sent from my SM-J710F using Tapatalk
השוק הזה פרוץ לחלוטין. תסתובב עם ארנק ביד, מוכן לשלם, ותקבל כל מה שתרצה מהיצרנים. אין קשר בין הרשום ברשיון והברזלים שתקבל. גם אין אכיפה.
זה פועל גם בכיוון ההפוך. אתה מקבל בטסט דרישות למאפיינים שמעולם לא היו בנגרר החדש שקנית.
אפרופו נגרריםקובץ מצורף 144096
Sent from my SM-A530F using Tapatalk