מה השיפוע המומלץ לגג של חנייה מחופה בסנטף על מנת שלא ייצטבר עליו שלג (אזור הרי ירושלים)?
Printable View
מה השיפוע המומלץ לגג של חנייה מחופה בסנטף על מנת שלא ייצטבר עליו שלג (אזור הרי ירושלים)?
לשלג מינימום 30%
שכמה זה במעלות?
מחשבים באחוז את הפרש הגבהים.
30 אחוז זה 30 סמ לכל מטר אורך
17 מעלות.
Sent from my LG-H815 using Tapatalk
15.75 , אבל מי סופר ...
בכל אופן זה המינימום !!! , תוודא שאתה בונה קונסטרוקציה חזקה - לאטות כל 30 ס"מ.
לתחושתי גג שלא יצטבר עליו שלג אמור להיות לכל הפחות סביב ה 45 מעלות.
ככה נראים הגגות במדינות הקרות אם לא למעלה מזה.
30 אחוז ( 15 מעלות) מוכר לי מהגג רעפים התקני בבית שלי.
מציע לבדוק את הנתון הזה שוב
עד כמה שאני יודע 100% שיפוע זה 45 מעלות.. כלומר 30% מ45.. 13.5 מעלות.
הסנטף הוא לא כמו רעף , הוא חלק לגמרי , מקדם החיכוך שלו מאוד נמוך .
ועם כל זאת עדיין רשמתי שזה המינימום , אני ממליץ על יותר ...כמה יותר ? .. כמה שאפשר יותר .
טעות
Shift tan 0.3= 16.69~17
בקיצור...
:(
כשאדם חכם אמר פעם "אוי ואבוי לחינוך המתמטי בארץ" לזה בדיוק הוא התכוון...
Shift tan 😢
Sent from my SM-N920C using Tapatalk
זה כבר להיתפס על הקטנות.
לדעתי בואו נחכה שירד גשם
ואז נדבר על שלג😁
Sent from my SM-G900F using Tapatalk
אוקיי, מתוכנן כרגע שיפוע של 35%
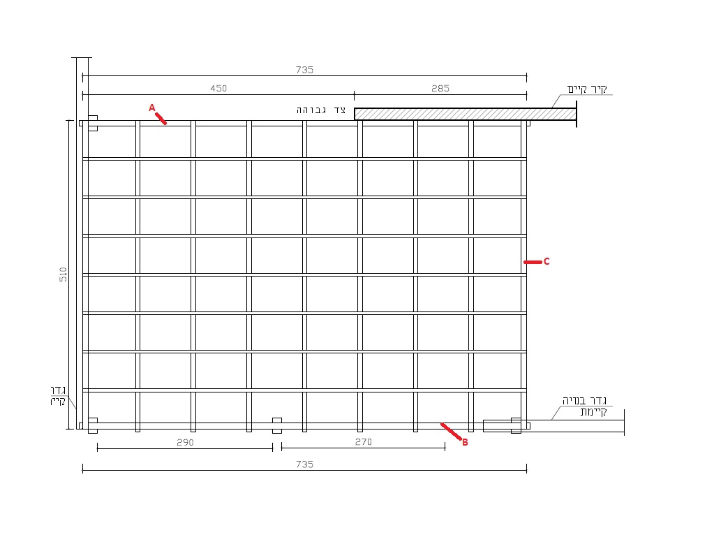
לגבי הקונסטרוקציה, אני מצרף סקיצה עם המידות של החנייה. אשמח לקבל המלצה על החתך לקורות השונות.
קורה A - מקובעת לקיר בצד אחד ונשענת על עמוד בצד השני יש לה מפתח "תלוי" של 4.5 מ'
קורה B - קורת החזית של החנייה מונחת על 2 עמודים בקצוות ויש לה עוד עמוד תומך במרחק 2.9 מהקצה וגם לה חלק תלוי של 4.5 מ'
קורות C - מחברות בין A ל-B עליהן המרישים והסנטף, האורך שלהן הוא סביב ה-7 מ'.
http://www.jeepolog.com/forums/attac...8&d=1489041683
תודה,
עירא
קורות ABC לא פחות מ- 7X20 , את המרישים אתה צריך להניח כל 30 ס"מ , לפי השרטוט מרווחים של יותר מ- 50 ס"מ .
מעבר לזה זה כבר עניין של עיצוב .
תודה!
כשאתה כותב לא פחות מ...
איזו מידה היית ממליץ על מנת להיות רגוע?
לגבי הרגליים, 10x10 15x15 20x20?
הקונסטרוקציה שלך מתוכננת מעץ?
אכן כן